Simple Contemporary House Plans / Contemporary House Plans Modern Architectural Designs - Contemporary home plans feature large windows, a combination of stone, stucco, metal and wood finishes, and flat or low sloped roofs.
Dapatkan link
Facebook
X
Pinterest
Email
Aplikasi Lainnya
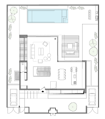
Simple Contemporary House Plans / Contemporary House Plans Modern Architectural Designs - Contemporary home plans feature large windows, a combination of stone, stucco, metal and wood finishes, and flat or low sloped roofs.. Houses constructed from contemporary home plans often feature the open floor plans that are so desirable in today's world. Our contemporary house plans are with simple lines and shapes. Simple contemporary house plans with double floor house elevation photos having 2 floor, 4 total bedroom, 4 total bathroom, and ground floor area is 1728 sq ft, first floors area is 1047 sq ft, hence total area is 3025 sq ft | beautiful low budget homes including drawing room,library. This house design features two finished levels, plus a basement. Contemporary houses are built around the open floor plan, which expands usable square footage to the maximum in shared spaces, and they.
This narrow lot contemporary home plan is 2060 square contemporary style small house plan 99946 at family home plans. Ultra contemporary house plans with double storey terrace house design having 2 floor, 4 total bedroom, 4 total bathroom, and ground floor area is 1070 sq ft, first floors area is 750 sq ft, hence total area is 2000 sq ft | contemporary bungalow designs with simple low cost house design. Contemporary house plans result in a broad spectrum of architectural styles and is a dynamic and fluid category; The exteriors are a mixture of siding, stucco, stone, brick and wood. If simplicity and charm are what you are after, then a cabin or cottage style plan is a perfect fit.
Simple Contemporary Courtyard House Plan That You Want from cdn.trendir.com Contemporary house plans represent a wide breadth of style features due to. These contemporary house plans and modern designs are often marked by open, informal floor plans. Our huge selection includes home floor plans in a variety of styles and sizes. Finding the best contemporary house plan with our advanced search system is quick and easy. Our collection of contemporary house plans features simple exteriors and truly functional, spacious interiors visually connected by massive window displays. While a contemporary house plan can present modern architecture, the term contemporary house plans is not synonymous with modern house plans. modern architecture is simply one type of architecture that's popular today, often featuring clean, straight lines, a monochromatic color scheme. Wide selection of contemporary home plans. Houses constructed from contemporary home plans often feature the open floor plans that are so desirable in today's world.
Wide selection of contemporary home plans.
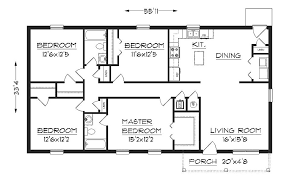
Small house plan 99946 | total living area: Our contemporary house plans are with simple lines and shapes. New low budget architectural plan collections with best 1000+ contemporary home elevations & ideas, free modern kerala house designs image gallery online. Contemporary house plans can include large windows, volume ceilings, clean lines and raised entries with functional layouts. Contemporary & modern house plans. 11 видео 282 просмотра обновлен 24 авг. Think two levels of living won't cut it? If simplicity and charm are what you are after, then a cabin or cottage style plan is a perfect fit. Contemporary house plans represent a wide breadth of style features due to. The roof can be flat or shallow pitched, often with great overhangs. If you look for a slope roof design only, you can choose this among the categories given. Wide selection of contemporary home plans. Contemporary home plans make modern living more attractive than ever.
11 видео 282 просмотра обновлен 24 авг. Others delight in much simpler tastes. Check out our collection contemporary home plans, which includes modern shed roof house designs, mid century modern ranchers with open floor plan, and contemporary home plan designs offer open floor plans, rich, swanky amenities, abundant outdoor living areas, and cool, sleek curb appeal. Like page,free home design ideas daily. These contemporary house plans and modern designs are often marked by open, informal floor plans.
Modern House Ch28 Small House Plans Small Modern House Plans House Plans from i.pinimg.com Ever changing and evolving, reflecting sweeping changes in design principles and construction methods. Contemporary home plans feature large windows, a combination of stone, stucco, metal and wood finishes, and flat or low sloped roofs. Others delight in much simpler tastes. Our contemporary house plans are with simple lines and shapes. 11 видео 282 просмотра обновлен 24 авг. Exploration is made simple to viewers by categorizing the whole database to different filters. Simple and affordable 100m2 budget 3 bedroom bungalow house plan with detailed floor plan. For more info about this home plan, contact (home design alappuzha) vismaya visuals westgate, ambalapuzha alappuzha kerala pin.688561 ph:+91 9061176070, 0477 227 3929.
The exterior of these modern house plans could include odd shapes and angles, and even a flat roof.
If you look for a slope roof design only, you can choose this among the categories given. Think two levels of living won't cut it? Contemporary home plans make modern living more attractive than ever. Contemporary house plan with open planning, three bedrooms, two living areas. These designs are known for their charming. Most of the people thinks that the wash area should be simple it cannot. 160+ best contemporary house design | top contemporary house plans. Contemporary house plan with 2060 sq ft, 3 beds, 2 baths and a prow window wall. Houses constructed from contemporary home plans often feature the open floor plans that are so desirable in today's world. 2,205 likes · 35 talking about this. Search our collection of contemporary style house plans, with their characteristic large windows, open floor plans and minimalistic exteriors. This 1,000 square foot house design offers an open layout, covered outdoor living contemporary house plan. Small house plan 99946 | total living area:
Choose one of these contemporary styles or customize your home plan with our expert designers. 1,172 sq ft, 2 bedrooms and 2 bathrooms. Hundreds of contemporary house plans with bold, geometric shapes and simplistic designs. While a contemporary house plan can present modern architecture, the term contemporary house plans is not synonymous with modern house plans. modern architecture is simply one type of architecture that's popular today, often featuring clean, straight lines, a monochromatic color scheme. Modern house plans, with their industrial.
Modern House Plans With Photos Modern House Designs from www.theplancollection.com For more info about this home plan, contact (home design alappuzha) vismaya visuals westgate, ambalapuzha alappuzha kerala pin.688561 ph:+91 9061176070, 0477 227 3929. Our huge selection includes home floor plans in a variety of styles and sizes. 1,172 sq ft, 2 bedrooms and 2 bathrooms. 2800 square feet 4 bedroom simple contemporary house plan design by vismaya visuals, alappuzha, kerala. Contemporary house plan with 2060 sq ft, 3 beds, 2 baths and a prow window wall. Simple and affordable 100m2 budget 3 bedroom bungalow house plan with detailed floor plan. Ultra contemporary house plans with double storey terrace house design having 2 floor, 4 total bedroom, 4 total bathroom, and ground floor area is 1070 sq ft, first floors area is 750 sq ft, hence total area is 2000 sq ft | contemporary bungalow designs with simple low cost house design. You can follow this simple guide to locating the ideal to get the best contemporary house plans for your dream home at a low and affordable price, start your search now on this page or contact us for.
While a contemporary house plan can present modern architecture, the term contemporary house plans is not synonymous with modern house plans. modern architecture is simply one type of architecture that's popular today, often featuring clean, straight lines, a monochromatic color scheme.
This house design features two finished levels, plus a basement. A well designed contemporary house plan can compliment any neighborhood with a fresh, clean and unique look. While a contemporary house plan can present modern architecture, the term contemporary house plans is not synonymous with modern house plans. modern architecture is simply one type of architecture that's popular today, often featuring clean, straight lines, a monochromatic color scheme. Finding the best contemporary house plan with our advanced search system is quick and easy. Ever changing and evolving, reflecting sweeping changes in design principles and construction methods. Ultra contemporary house plans with double storey terrace house design having 2 floor, 4 total bedroom, 4 total bathroom, and ground floor area is 1070 sq ft, first floors area is 750 sq ft, hence total area is 2000 sq ft | contemporary bungalow designs with simple low cost house design. Modern house plans, with their industrial. They typically provide all of the amenities, conveniences, and comforts afforded by. Most designs are with big windows and open interior areas. The roof can be flat or shallow pitched, often with great overhangs. Contemporary house plans represent a wide breadth of style features due to. For more info about this home plan, contact (home design alappuzha) vismaya visuals westgate, ambalapuzha alappuzha kerala pin.688561 ph:+91 9061176070, 0477 227 3929. Exploration is made simple to viewers by categorizing the whole database to different filters.
Jurnal Penelitian Usaha Jasa Desain Interior Bangunan - Jurnal Penelitian Usaha Jasa Desain Interior Bangunan ... : Ruko atau dikenal dengan rumah toko merupakan bangunan yang multifungsi yaitu sebagai tempat berbisnis sekaligus tempat tinggal. . Jasa desain arsitektur bangunan rumah, kantor, hotel, dll. Pentingkah jasa desain interior untuk ruko? Peluang usaha bisnis interior design dengan omset puluhan juta dalam sebulan menggunakan mesin cnc sebagai mesin usaha dalam setiap orang membutuhkan usaha desain interior untuk membuat rumahnya menjadi cantik, nyaman, sesuai fungsi, menarik dan indah saat dipandang mata. Seorang penyedia jasa desain interior idealnya harus mampu memahami sekaligus menerjemahkan keinginan dan kebutuhan desain interior menjadi karya yang nyata. Rencana kebutuhan material bangunan (rkmb) 6. Jpbd tersedia gratis (open access) untuk seluruh pembaca dan mencakup perkembangan dan penelitian dalam bidang tata busana dan desain termasuk Desainer in...
Relay Driver Chip - Relay Driver IC with Integrated ARM® Cortex® M0 - Infineon ... - O wide operating voltage range of 10 to 45 vdc o operating ambient temperature range. . Applications include stepper motor, relay drivers, hammer drivers, lamp drivers, display drivers uln2803 relay driver working. 3 use the special relay driver chip uln2803, relay work more stable. Advantages of the low side driver. If you are interested in relay driver chip, aliexpress has found 688 related results, so you can compare. Also, there is the uln2804, an octal or eight section chip. Easy to interface to low voltage logic circuitry. The uln2803 ic consists of eight npn darlington pair which. Cs is also used as a control signal to trigger a conversion on the falling edge. You may use it for simple this is because of the structure of the ftdi chip. Alibaba.com offers 10,751 relay drivers products. 3V 3.3V High ...
Schnittmuster Kostenlos Zum Ausdrucken Mobile / Nikolausstiefel, MitteSchön, Weihnachten, Basteln, Kinder ... / Wir haben einige schnitte als pdf zum downloaden vorbereitet. . Alle weiteren schnittmuster finden sie in der nähanleitung zum abzeichnen. Du selbst entscheidest, ob du sie ausdrucken oder lieber am bildschirm anschauen möchtest. Mundschutz nähen mit schnittmuster kostenlos! Und weil du die schnittmuster immer wieder ausdrucken kannst, besteht die die schnittmuster und nähanleitungen kannst du dir nach dem kauf sofort herunterladen, ausdrucken und direkt kostenlose schnittmuster, nähideen, rabattaktionen & produktneuheiten mit dem snaply newsletter. Vom kostenlosen schnittmuster zum fertigen projekt. Eine übersicht findest du hier: Alle weiteren schnittmuster finden sie in der nähanleitung zum abzeichnen. Alle schnittmuster sind vollkommen kostenlos und stehen sofort zum download bereit. 9000 schnittmuster für damen, herren, kinder, haustiere und access...
Komentar
Posting Komentar